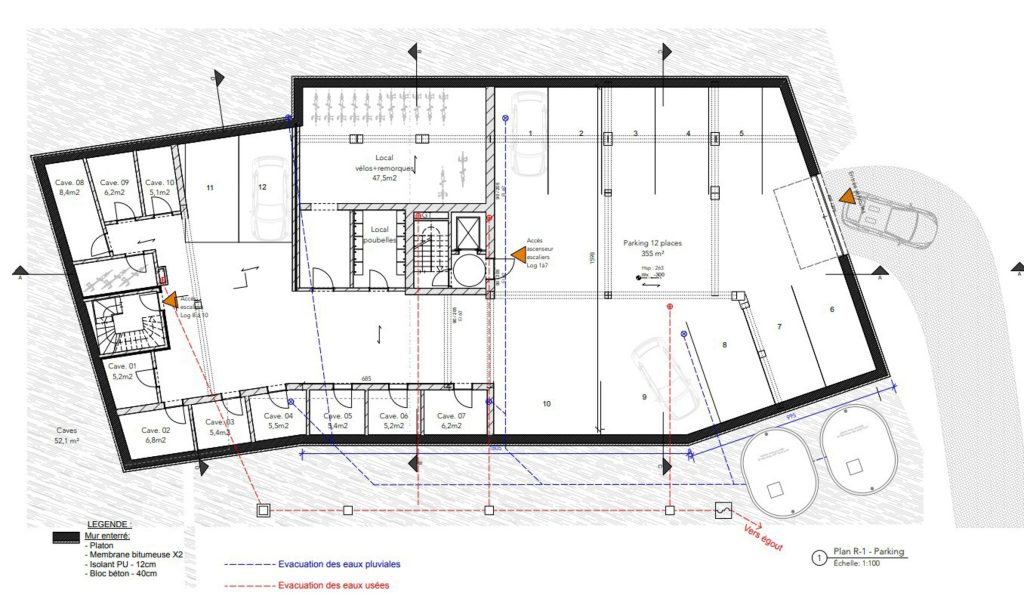
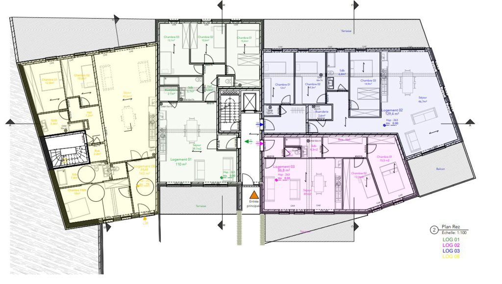
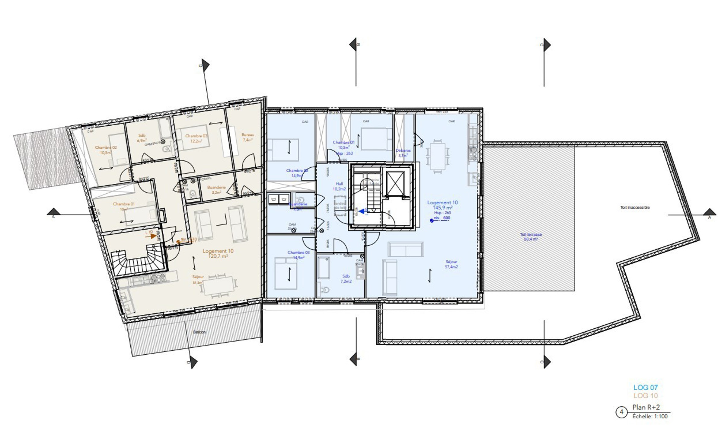
A Herstal, 5 sur 5 Immobilier vous propose un terrain à bâtir sur lequel un projet comprenant 10 logements a été développé.
ON AIME :
• L’emplacement, au calme et à proximité de la gare.
• Le projet développé de qualité avec avis favorable.
• La faculté de l’adapter en fonction de vos souhaits.
• Golf de Liège- Bernalmont à 750 m
CÔTE PRATIQUE :
• Bus 72 à 400 m
• Gare d’Herstal à 650 m
• Commerces (Colruyt) à 1.500 m
• Ecoles à 550 m
• Centre Sportif à 1.100 m
DESCRIPTION :
Le terrain bénéficie d’une large façade, il est situé dans une rue calme.
Le projet imaginé par l’architecte tire bien partie de cet emplacement.
Renseignements ou visites au 0477/511.254 ou info@5sur5.eu













